Tiny House.
Designed as a prototype for an affordable house in Indore India, this tiny house comfortably accommodates a family of four.
Designer
Location
Area
Photographer

/
Info
(01)
Overview
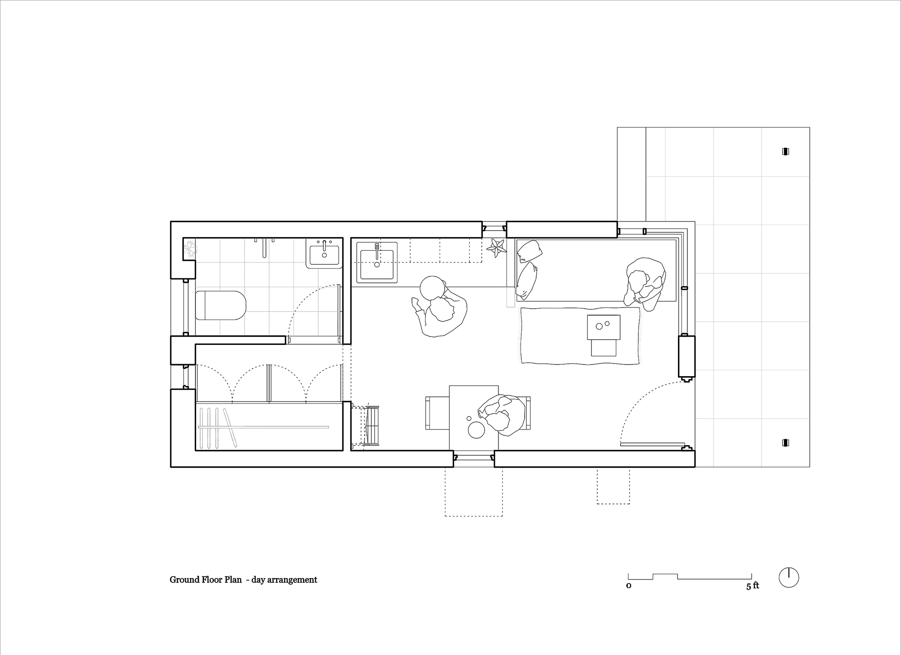
Designed as a prototype for an affordable house in Indore India, this tiny house comfortably accommodates a family of four. It occupies a minimal footprint of 19.5 square metres with a spill-out space of 6 square metres. Despite its compact footprint, the interior feels spacious, featuring a versatile single volume that adapts to various daily needs. The house features an RCC-frame structure with in-situ cast isolated footing foundations and brick infill walls, making it easy to replicate using locally available skills and construction techniques.
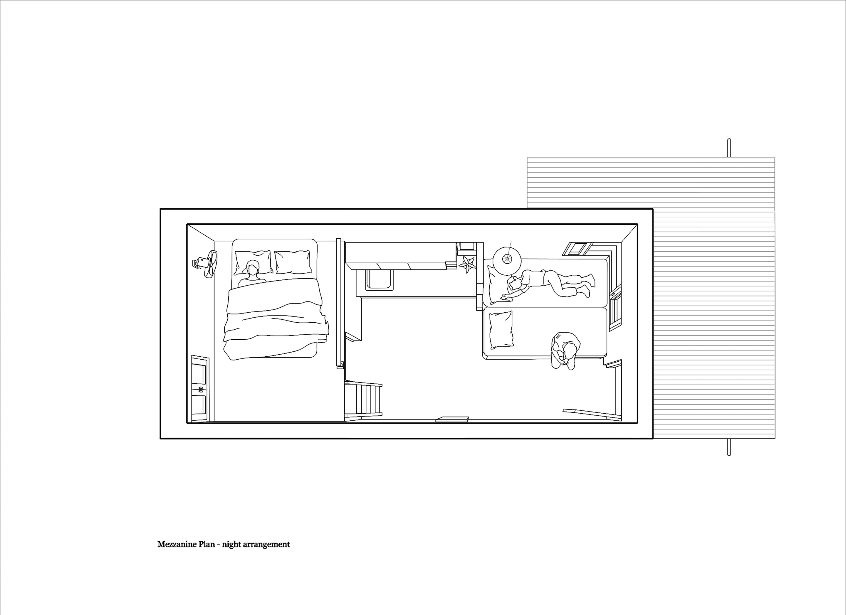
The house is accessed through a semi-open space on the east and includes a large, multifunctional interior volume. A toilet and storage area are tucked beneath a mezzanine floor to the west. This layout transcends the conventional housing template of separate living, dining and sleeping spaces in favour of ideas of multifunctionality. The main living space is equipped with a daybed cum sofa and flexible seating, functioning as a living area by day and transforming into an open bedroom with a pull-out double bed by night. A foldable table opposite the kitchen serves as both a dining area and a study space.
Strategically placed openings on all sides provide optimal natural light, ventilation, and views. The western facade’s 300mm (12 inches) thick wall minimizes thermal gain, keeping the interior cool. The kitchen sink and bathroom’s adjacency allow them to benefit from minimal plumbing costs with the overhead water tank positioned right above.
Constructed for INR 4,55,000 (GBP 4,500), the home features premium finishes like marble flooring, bespoke teak-framed double-pane windows, and high-quality fixtures. It balances design, functionality, and cost-efficiency, while making it an aspirational housing solution suited for working families in India’s tier-two cities. Building multiple units can allow for shared infrastructure, such as solar panels, and communal amenities like libraries, gyms, and launderettes – further reducing both construction and operational costs.
The design draws from insights gained through interactions with rural migrants living in rented houses, residents of social housing, and self-build homeowners addressing their aspirations, lifestyle, and affordability needs. This project illustrates how thoughtful design can create economic and ecological housing, paving the way for vibrant communities in urban and peri-urban areas.





Latest Projects.
© Tanvi Jain
A curated selection of projects that reflect our commitment to simplicity and purposeful design.





