One house, many homes.
At Studio MADe, Competition entry.

/
Info
(01)
Overview
Assisted Living Kusnacht, Switzerland
Role: Concept Design, Text, Design development
Recognising that the current building serves as the anchor to the landscape, the proposal uses the existing footprint with an extension to the south. Minimal changes are made to the topography and the memory of the old structure is preserved while enhancing the building’s relationships with the context.
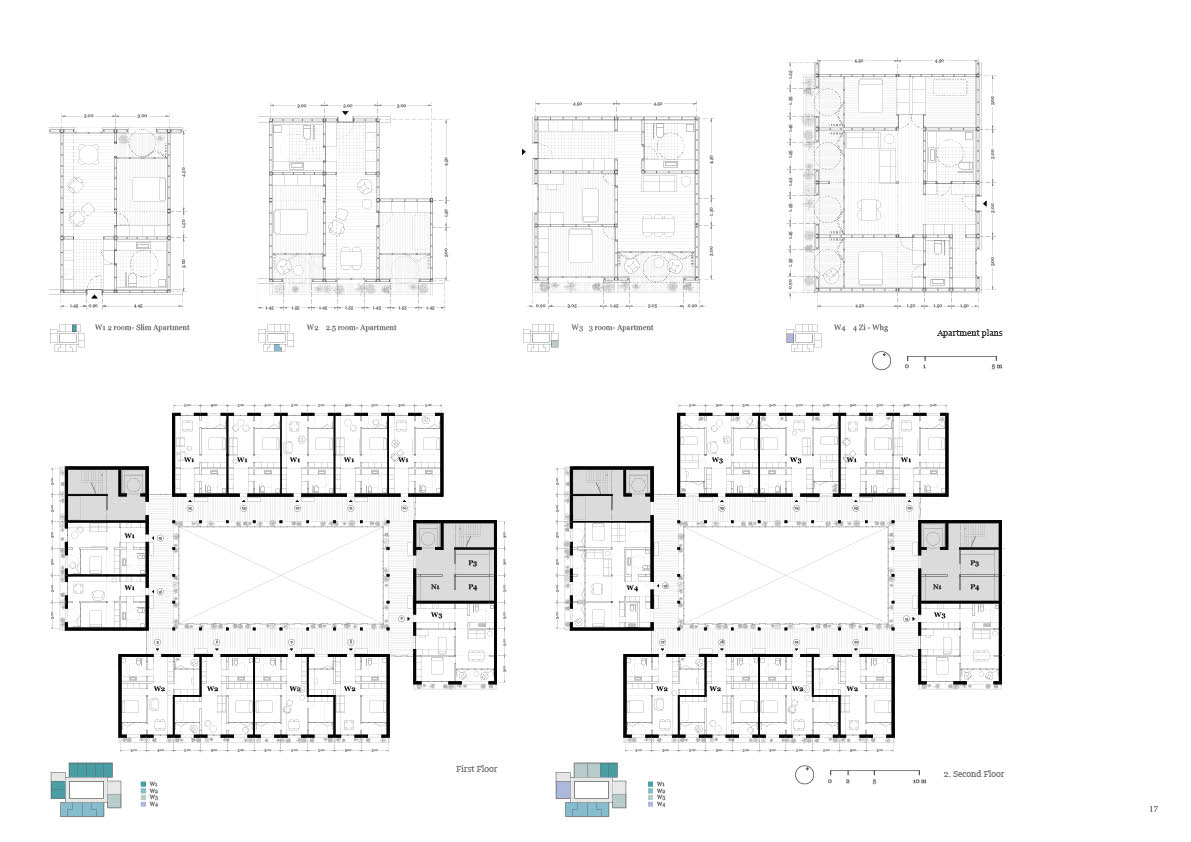
The proposed assisted living facility prioritises independence and aims to instil a sense of agency within the residents, instead of imposing care. A level ground floor, communal spaces, and non-monotonous layouts around well-lit spaces are some ways the project creates a possibility of sheltered yet independent life for the elderly – as they reach the ultimate private threshold of life.






Latest Projects.
© Tanvi Jain
A curated selection of projects that reflect our commitment to simplicity and purposeful design.

